-
서울대학교 가족생활관 14평형 실측일상/제목없음 2023. 12. 20. 12:20
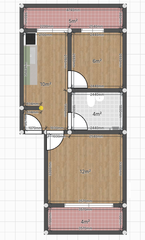
이번에 서울대학교 가족생활관에 들어가게 되었습니다.
가구 배치를 위해서 방의 크기를 알아야 하는데
생활관의 실측 정보가 없어서 와이프 최고가 직접 줄자로 기록하여 공유드립니다.
랜더링 툴 : 오늘의집 3D인테리어 서비스
* 측정오차 고려 바람, 문의 크기는 다를 수 있음

이번에 서울대학교 가족생활관에 들어가게 되었습니다.
가구 배치를 위해서 방의 크기를 알아야 하는데
생활관의 실측 정보가 없어서 와이프 최고가 직접 줄자로 기록하여 공유드립니다.
랜더링 툴 : 오늘의집 3D인테리어 서비스
* 측정오차 고려 바람, 문의 크기는 다를 수 있음
